高山市で不動産 業務を行っています、イーエステートは新築・中古住宅・土地・売地・分譲地・賃貸の不動産物件を扱っています。資産や土地活用の助言、賃貸物件の管理業務も請け負っています。

高山市イーエステート イーエステート 問い合わせをする
トップページへ 売地物件へ 賃貸 アパート・一戸建て 賃貸 業務物件 住宅・店舗物件 会社案内
高山市 イーエステート 賃貸事業用物件
トップページ >> 賃貸情報 >> iwahataビル 賃貸 4階部分


高山駅 徒歩4分・高山の町並みが一望・花火が見えます


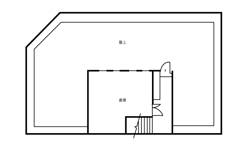
名前 屋上+倉庫 賃料 30,000円

iwahataビル 5階
屋上+倉庫

修繕積立金 賃料3ヶ月
礼金 賃料3ヶ月
仲介手数料 賃料+消費税
共益費 5,000円
  ※消費税別 取引形態 仲介
所在地 岐阜県高山市名田町5丁目95番21
交通 高山駅より290m 徒歩約4分 学区 南小・日枝中
構造 鉄筋コンクリート造陸屋根 5階建て1棟
利用状況 屋上+倉庫 築年 昭和46年1月築
床面積  

IWAHATAビル
外観
その他 5階 : 屋上+倉庫
※火災保険に要加入
地積  
用途地域 商業地域・準防火地域
建ぺい率 80%
容積率 400%
施設  
道路 西側国道幅員8.5m ・ 都市計画道路 北側市道幅員8m
 ・その他の階 ・・・ 3F ・ 4F ・ 5F(屋上+倉庫)

外観 ・ エントランス
iwahataビル 高山市不動産 iwahataビル 高山市不動産 iwahataビル 高山市不動産 iwahataビル 高山市不動産
屋上 ・ 倉庫
iwahataビル 高山市不動産
屋上
iwahataビル 高山市不動産
高山駅方面
iwahataビル 高山市不動産
国分寺方面
iwahataビル 高山市不動産
屋上
iwahataビル 高山市不動産
城山方面
iwahataビル 高山市不動産
屋上
iwahataビル 高山市不動産
通路
iwahataビル 高山市不動産
倉庫内
iwahataビル 高山市不動産
倉庫内
iwahataビル 高山市不動産
倉庫内
iwahataビル 高山市不動産
倉庫内
iwahataビル 高山市不動産
倉庫内
アパート情報 間取り
1階・エントランス
アパート情報 間取り
屋上
グーグルマップで表示  
上の写真をクリックして下さい。拡大表示されます。

賃貸情報に戻る



イーエステートにお気軽に物件問い合わせください

イーエステート 知って得する不動産知識の種
ひだやまなみ ホームページへ

不動産の無料査定

空き家の管理 ご相談下さい

高山市不動産 土地活用・資産運用 ご相談下さい

賃貸オーナー様へ 賃貸物件管理